Этот материла статьи является лишь частным из возможного списка задач представшим перед вами при проектировании корпуса. Действительно, тот кто хоть пытался что-то сделать своими руками, я имею ввиду сейчас радиоэлектронные поделки, не в последнюю очередь думал о том, где же разместить свое творение, то есть в каком корпусе. Вот и передо мной каждая новая поделка ставила такую задачу, куда же ее разместить и что для нее придумать в качестве корпуса.
И вот чтобы как-то решить эту проблему комплексно, я реши сделать что-то вроде универсального корпуса, который можно легко трансформировать под нужные нам размеры, если вносить минимальные поправки. В итоге на свет и родились эти вот чертежи.
Итак, речь как я говорил идет о корпусе. И вот что я на этот счет придумал.



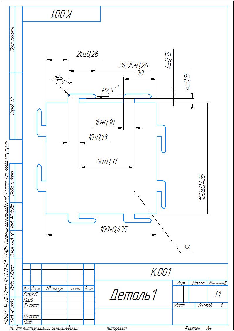
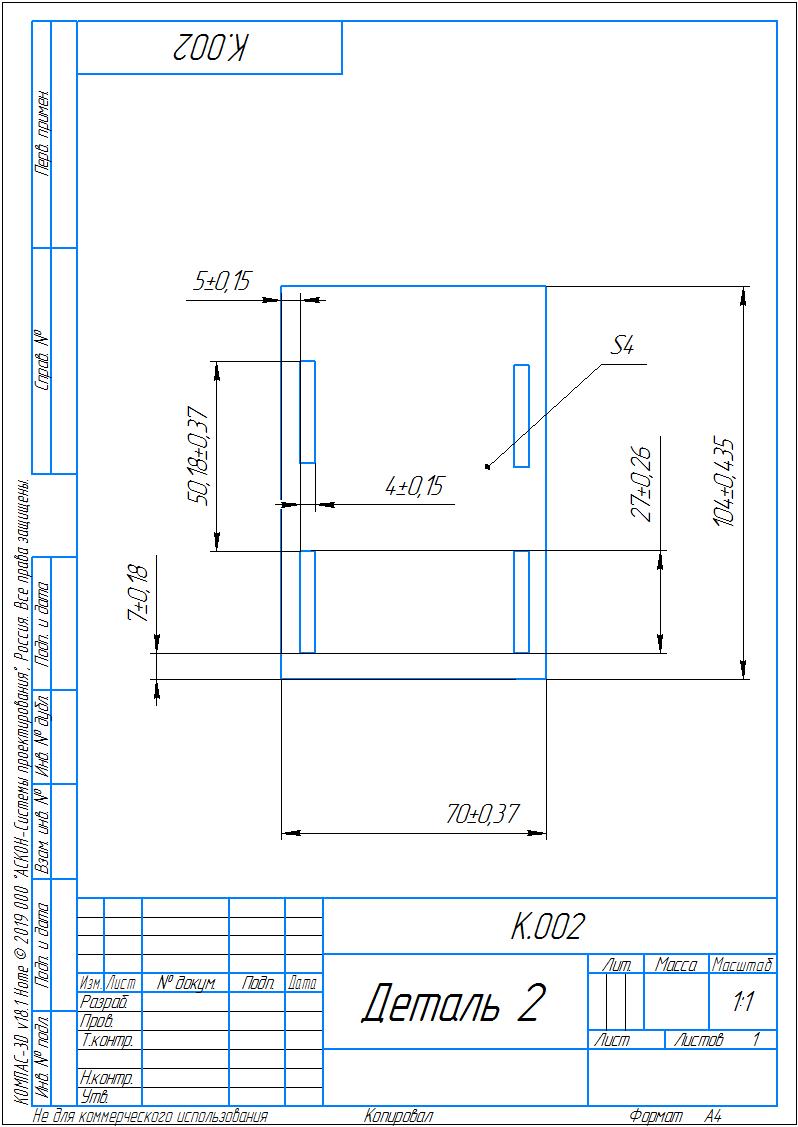
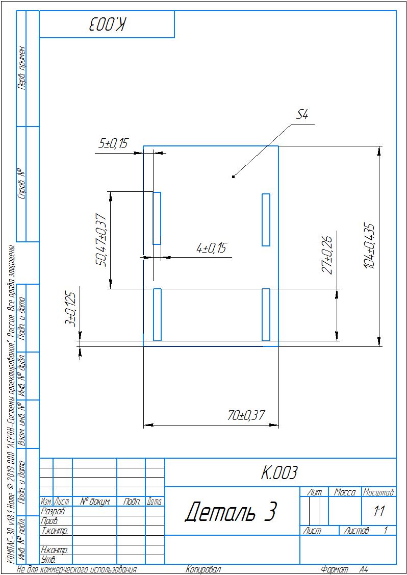
Если вы умеете читать чертежи, а я думаю это не так уж сложно, по крайней мере для данного случая. То можно вполне себе представить, что можно сделать, если у нас будет комплект из следующего количества деталей:
Деталь 1 - 2 шт.;
Деталь 2 - 3 шт.;
Деталь 3 - 1 шт.
Из них можно собрать корпус, который и может стать той самой "защитной кожурой" для наших поделок. Корпус можно заказать из стали или пластика. Главное соблюдать толщину для материала - 4 мм. Я решил как-то на первый раз заказать себе именно из металла. Качество реза было не очень, поэтому пришлось дорабатывать напильником в прямом смысле.

И еще один ракурс.

Ну и о чем я еще начинал говорить, но еще не закончил, так это о универсальности корпуса.
Если взглянуть на чертеж и представить что нам надо изменить высоту или ширину, то это весьма легко сделать, мысленно скажем в первую и вторую деталь добавить нужный нам линейный размер. В итоге наш корпус "разъедется" на нужную строительную длину и мы получим другой по габаритам корпус. В общем в этом нет ничего удивительного, все более чем логично и понятно!
Думаю я еще не раз вернусь к идее заказа таких корпусов, скорее всего уже из пластика, чтобы размещать свои поделки в их чреве!:)