Принцип поддержания температуры нагревательного элемента в электрических плитах может быть реализован по разному. В первую очередь это зависит от самого нагревательного элемента, будь то элемент в металлическом, чугунном корпусе или нагревательные элементы встроенные в корпус стеклянной поверхности, так называемая стеклокерамика.
Что относительно металлических нагревательных элементов, то они часто имеют несколько независимых нагревательных нитей внутри себя и само собой регулировка мощности такого элемента производится путем подключения / отключения количества спиралей.
Однако есть и другой принцип поддержания температуры нагревательного элемента, когда он периодически то включается, то выключается. Все дело в том, что у таких элементов одна спираль и только такой алгоритм работы может обеспечить условно один уровень температуры.
Само включение отключение осуществляется за счет так называемого регулятора мощности. В нем встроен биметаллический выключатель, который при перегреве отключает питание конфорки, а при охлаждении снова включает ее. Так и происходит регулировка уровня нагрева.
Собственно такой регулятор мощности является одной из тех деталей, которая может выйти из строя и которая может попасть под замену. При этом само собой потребуется схема для подключения такого регулятора с его техническими характеристиками. Именно этому и будет посвящена моя статья.
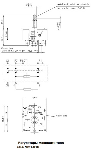
Схема подключения регулятора мощности EGO 50.57021.010

* - Далее схема для регулятора мощности имеющего возможность регулировать две цепи по тому же принципу. Само собой маркировка несколько другая. Имеет уже на корпусе не 8, а 9 ножек!

Принцип работы регулятора мощности для стеклокерамических плит
Из схемы видно, что к выводу 2 и 4 подключена не только нагрузка, но и термореле, которое при перегреве отключает и себя и нагрузку, тем самым регулируя нагрев конфорки. То есть нагрузку подключаем к 2 и 4 выводу, индикацию работы плиты к S1 и S2.
Регулятор мощности EGO 50.57021.010
- для стеклокерамических поверхностей
Технические характеристики:
переключающая мощность: 13 А
диаметр оси: 6x4,6 мм
длина оси: 23 мм
резьба крепления: M4
энергитический допуск: 6 - 100 %
контакты: 230В 13A - температура 125°C
двустороннее вращение
для стеклокерамических поверхностей
Альтернативные коды (обозначения):
405611100089 - ALBA
0A2482 - ALPENINOX
055016 - ALPENINOX
026861 - ALPENINOX
005270 - ALPENINOX
0C1605 - ALPENINOX
0K8611 - ALPENINOX
6205406501 - AMBACH
32Z0170 - ANGELO PO
32Z0171 - ANGELO PO
163900005 - ARCELIK BEKO
41853400180 - BARON
853400010 - BARON
853310063 - BARON
6A049320 - BARON
826630140 - BARON
05057021010 - BARTSCHER
24114800 - BERTO'S
M00317558 - BOMPANI
72113E - BONNET
1800602 - BONNET
301200 - BONNET
09020004 - CB
63.7.0601 - CF CENEDESE
09099A - CHARVET
EMPUAH00 - COVEN
9107 - DIHR
30102 - DIHR
91031 - DOSILET
400007050 - DOSILET
K002B42045 - EDESA
5057011000 - EGO
5057021010 - EGO
5017011000 - EGO
5017021000 - EGO
5037011000 - EGO
5037021000 - EGO
3150788234 - ELECTROLUX
50281418009 - ELECTROLUX
026861 - ELECTROLUX PROFESSIONAL
005270 - ELECTROLUX PROFESSIONAL
0A2482 - ELECTROLUX PROFESSIONAL
055016 - ELECTROLUX PROFESSIONAL
0C1605 - ELECTROLUX PROFESSIONAL
0K8611 - ELECTROLUX PROFESSIONAL
8C0297 - EMMEPI
E11110001 - EMMEPI
809397 - EMMEPI
808020 - EMMEPI
539205 - ERRE 2
6031023 - EURAST
96031023 - EURAST
K002B42045 - FAGOR
S333001000 - FAGOR
12024522 - FAGOR
75X1764 - FAGOR BRANDT
77X3797 - FAGOR BRANDT
71X7083 - FAGOR BRANDT
4.0.130.0009 - FIAMMA RST
CO4875 - FIMAR
CO1953 - FIMAR
05050204750 - FOEMM
539205 - GICO
539206 - GICO
539209 - GICO
SIM123 - GIERRE
5010063 - GIGA
X44400 - GIGA
6031020 - GIORIK
6031023 - GIORIK
6031024 - GIORIK
HAKA
301200 - HOBART
A45600 - ILVE
C00037056 - INDESIT
C00314627 - INDESIT
C00492938 - INDESIT
C2192-00 - INOXTREND
0101250 - KELVIN
KING
9107 - KROMO
30102 - KROMO
540548 - KÜPPERSBUSCH
183236 - KÜPPERSBUSCH
183149 - KÜPPERSBUSCH
183150 - KÜPPERSBUSCH
50304011 - LAINOX
MACM293900 - LAINOX
LA65080250 - LAINOX
LAR65080250 - LAINOX
R65080250 - LAINOX
R50304011 - LAINOX
LOHBERGER
537020100 - LOTUS
537013300 - LOTUS
537021500 - LOTUS
_07931 - LOTUS
_02390 - LOTUS
CM189600 - MARENO
MACM189600 - MARENO
LA65080250 - MARENO
426710 - MARENO
1037035310 - MARENO
1037108713 - MARENO
9107 - METOS
6A049320 - METOS
30102 - METOS
203160 - MKN
661.101.00 - MODULAR
M564010400 - MODULAR
RRC2192-00 - MODULAR
A34100700 - MODULINE
34100700 - MODULINE
PD412J - NAYATI
6A049320 - OLIS
314544 - PALUX
33063301 - RIEBER
RINALDI SUPERFORNI
8900215 - ROKA
A04006 - ROLLER GRILL
RX94812641 - ROSINOX
32Z0170 - SAGI
32Z0171 - SAGI
6503625 - SAMMIC
4.0.130.0009 - SAMMIC
CM293900 - SILKO
CM189600 - SILKO
MACM293900 - SILKO
LAR6508025 - SILKO
0108203 - SILKO
0105171 - SILKO
1037108713 - SILKO
3.11260060130 - SILTAL-IAR
IB5256500 - SIRMAN
ATHD073010 - SIRMAN
IGS445SF - SIRMAN
816810066 - SMEG
P82SO - LYMAC
RC00937000 - TECNOINOX
RCK6031023 - TECNOINOX
RC00006501 - TECNOINOX
RC00012000 - TECNOINOX
72113E - THIRODE
1800602 - THIRODE
301200 - THIRODE
341141 - UBERT
07160001 - UNIVERSAL
483286000399 - WHIRLPOOL
481227328267 - WHIRLPOOL
481227338086 - WHIRLPOOL
771985003070 - WHIRLPOOL
202482 - WHIRLPOOL
271605 - WHIRLPOOL
248611 - WHIRLPOOL
482000022605 - WHIRLPOOL
481927328279 - WHIRLPOOL
481927338086 - WHIRLPOOL
483286008224 - WHIRLPOOL
TERM0014 - ZANOLLI
TERM0050 - ZANOLLI
0A2482 - ZANUSSI
055016 - ZANUSSI
026861 - ZANUSSI
005270 - ZANUSSI
0C1605 - ZANUSSI
0K8611 - ZANUSSI
Устанавливается в электрические плиты следующих моделей:
BONNET: B107CP4PE, B-B909.CP400 P075756
DIHR: S1
DOSILET: GG4000, TT6000
ELECTROLUX: ASU4060I (91172502000), ASU4040IW (91182300700), ASU4040IB (91182300800), ASU4040IS (91182300900), ASU4040IN (91182301000), ASU4050I (91182500300), AKE4123IW (92344101400), AME3039NN (94960021200), AME3051NN (94960031000), AHE4062UB (94972024600)
ELECTROLUX: 5020E-B (94031602300), E57415-4-M R05 (94032015300), FMT45N (94772702100), FMT45N (94772703200)
ELECTROLUX: AME3040NN (94960061800), EHB334X (94960064500 ), ZKM3040XX (94960068300)
ELECTROLUX: AEF3100N (90000005400)
ELECTROLUX: C6033V-A EURO (94031307600), 30006VE-W (94031310700), E 1000-EW EURO (94031644800 ), E 1000-B EURO (94031644900 ), E 1000-M1 EURO (94031645000 ), E 4100-D EURO (94031645500 ), E 4100-EW EURO (94031645600 ), E 4100-B EURO (94031645700 ), E 4100-M EURO (94031645800 ), CE4100-1-D EURO (94031667500), CE4100-1-W EURO (94031667600), CE4100-1-B EURO (94031667700), CE4100-1-M EURO (94031667800), CE4100-1-A EURO (94031667900), CE1100-2-W EURO (94031679400), CE1100-2-B EURO (94031679500), CE1100-2-M EURO (94031679600), E4101-4-M EU R05 (94032028700), E4101-5-M DE R08 (94032039801), E4101-5-M EU R08 (94032039901), AHE4062US (94972024800)
ELECTROLUX: ASK4022D (94166808600)
ELECTROLUX: AME2200KB (9413262500), AME2200KW (94132626600), AME2250KB (94168364100), AME2250KW (94168364200), AME3011NN (94960000500), AME3024KN (94960010800), AME3064KN (94960042000), AME3079NN (94960051300), EHB334X (94960060200 ), AME3040NN (94960060500), ZH2SGF (94960060800), DGF310X (94960060900), EHB334X (94960061500), DGF310X (94960062100), DGF310X (94960063000), EHB334X (94960063500), DGF310X (94960064300)
ELECTROLUX: 130FG-M (94117742300), EHB334X (94117764100), AME2222KB (94168363100), AME2222KW (94168363200), AME2222KS (94168363300), AME2222KJ (94168363400), AME2222KN (94168363500), EHO602W (94959070900), EHO602K (94959071000), EHO603K (94959071600), EHO603W (94959071700), EHO603B (94959071800), K641X (94959097000), K641X X50 (94959117500), K641X 63D (94959162600), EHP663X 75L (94959200100), K641X 63C (94959223700), EHP663X 30S (94959296501), 130FG-M (94960068000)
FAGOR: ME7-10BM, ME9-10BM, ME9-10BM316, ME9-10BMS, ME9-10PLUSBM, ME9-15BM, ME9-15BM316, ME9-15BMAD, ME9-15BMS, MPE9-10BM, MPE9-10BMS, MPE9-15BM, MPE9-15BMS
FAGOR: MG9-10AD, MG9-10BMAD, MG9-10PLUS, MG9-10PLUSBM, MG9-15AD, MG9-15BMAD, MG9-15PLUS, MG9-15PLUSBM, MG9-20AD, MG9-20PLUS
FAGOR: HVG-20-11
FAGOR: HVG-10-11, HVG-10-11UL, HVG-10-21, HVG-10-21UL, HVG-10UL, HVG-2.10, HVG-2.10-11, HVG-2.20, HVG-20, HVG-20-21, HVG-2-20-11, MFHVG-10, MFHVG-10-21, VGT-10, VGT-10-21, VGT-2.20, VGT-20, VGT-20-11, VGT-20-21, VGT-2-20-11
FAGOR: CV6-20, CV6-40
FAGOR: CPE6-05, CPE7-05, CPE7-05NC, CPE9-05, CPE9-05AD, CPE9-05ADS, CPE9-05PLUS, CPE9-05PLUSS
FAGOR: CPG7-05, CPG7-05NC, CPG9-05, CPG9-05AD, CPG9-05ADS, CPG9-05PLUS, CPG9-05PLUSS, EPC-350, GPC-350
FAGOR BRANDT: MP4330EX1 (MP4330EX), MP4330EX2 (MP4330EX), MP4330EX3 (MP4330EX)
FAGOR BRANDT: EN626-1 (EN626), EN626-2 (EN626), EN634-1 (EN634), K5026-1 (K5026), K5026-2 (K5026), K5026-2 (K5026B), K5026-2 (K5026N), K522-1 (K522), K522-2 (K522), K534-1 (K534), K534-1 (K534N), K626-1 (K626), K626-2 (K626), K626-2 (K626B), K626C2 (K626C), K626C2 (K626CN), K626-2 (K626N), K634-1 (K634), K634-2 (K634), K634-3 (K634), K634-3 (K634B), K634C1 (K634C), K634-3 (K634N), KB522-1 (KB522), KB622-1 (KB622), KB622-2 (KB622), KB622-2 (KB622N), KB624-1 (KB624), KB624-2 (KB624), KB624-5 (KB624), KB624-2 (KB624B), KB624-2 (KB624N), KB626-1 (KB626), KB634-1 (KB634), KBN624-1 (KBN624), KBN624-2 (KBN624), KF625-1 (KF625), KF625-1 (KF625B), KF625-1 (KF625N), KF639-1 (KF639), KF639-2 (KF639), KF639-2 (KF639N), KFB628-1 (KFB628), KFB628-2 (KFB628), KFB630-1 (KFB630), KFB630-2 (KFB630), KFBN628-1 (KFBN628), KFBN630-1 (KFBN630), KN626C1 (KN626C)
FAGOR BRANDT: E626-1 (E626), E626-2 (E626), E626C1 (E626C), E626C2 (E626C), E634-1 (E634), E634-2 (E634), E634-3 (E634), EN626C1 (EN626C), EN626C-2 (EN626C)
FAGOR BRANDT: KD173W1G1 (KD173W1G), KD173W1G2 (KD173W1G), KN173W1G1 (KN173W1G), KN173W1G2 (KN173W1G), KNA13W1N1 (KNA13W1N), KNA43W1N1 (KNA43W1N), KNA84W1N1 (KNA84W1N), KNA85W1N1 (KNA85W1N), KNW95W1N1 (KNW95W1N), KV372WE11 (KV372WE1), KV571WN11 (KV571WN1), KV571WN12 (KV571WN1), KV571XN11 (KV571XN1), KV571XN12 (KV571XN1), KV600WN11 (KV600WN1), VBM51BW-1 (VBM51BW)
FAGOR BRANDT: HFD53B1F1 (HFD53B1F), HFD53B1F2 (HFD53B1F), HFD53F1F1 (HFD53B1F), HFD53F1F2 (HFD53F1F), HFD53W1F1 (HFD53W1F), HFD53W1F2 (HFD53W1F), HFL12B1E1 (HFL12B1E), HFL12B1E2 (HFL12B1E), HMT51F1F1 (HMT51F1F), HMT51W1F1 (HMT51W1F), HMT51X1F1 (HMT51X1F), HMT51X1F2 (HMT51X1F), T106RV2 (T106RV), TLE40H2 (TLE40H), TLK31B4 (TLK31B), TLK31C2 (TLK31C), TLK31C4 (TLK31C)
FAGOR BRANDT: DE89B1 (DE89B), DE89H1 (DE89H), TLK31H4 (TLK31H)