В этой статье будет приведен личный опыт по подключению гаража к электросетям в городе. В свое время был куплен гараж, но электричества в нем не было. А что это за гараж без электричества? Именно поэтому одной из первых задач было подключение этого самого электричества. Так вот, особо правил и СНИПов я не знал, да и знать не хотелось, поэтому боялся, что все так просто не обойдется. К тому же неизвестность подстерегала еще и с юридической точки зрения. Однако оказалось не все так плохо. Об истории подключения своего гаража к электричеству, я и расскажу вам в этой статье.
Началось все сразу после нового года. Даты я буду приводить для того, чтобы вы смогли сориентироваться, как долго идет процесс и сколько предстоит ждать.
Телефонные переговоры или куда же идти первым делом
Настал день когда пора было приступать к делу. Первыми были звонки в организацию занимающейся поставкой электричества в нашем городе, пусть это некая компания «Электросеть». В итоге после 2-3 звонков выяснилось, что обращаться надо не в организацию поставляющую нам электричество, а в организацию обеспечивающую именно техническую сторону вопроса. Оказалось, надо было набрать «Городские электрические сети», а именно «Отдел технологических подключений». Это было где-то 15 января.
Как подключить электричество к зданию, дому гаражу, что надо делать
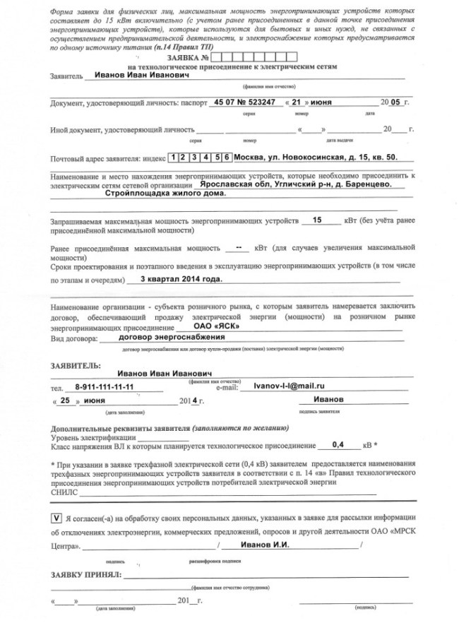
В итоге там мне сообщили, что необходимо подъехать и заполнить заявку на технологическое присоединение к электрическим сетям. При этом при себе для заполнения заявки необходимо иметь следующие документы:
- право на собственность (строение, земля);
- паспорт;
- ИНН;
- распечатать план с дубль ГИС, где расположен гараж. (то что прилагалось ниже на картинках)

Вначале я думал, что для плана надо будет привлекать какое-нибудь БТИ или еще лучше иметь документ от кадастровой службы, но этого не потребовалось! Также дополнительно было сделано несколько фотографий гаража и ближайшего столба, к которому можно осуществить присоединение. Вроде вот таких.
Далее со всем этим пакетом документов я готов был отправиться в городские сети. Узнав время работы, и найдя свободный часик, я заскочил к ним. Написал заявку на подключение по образцу.

Заполняется заявка быстро, также спросил про время ожидания… Ответ был простым - ждите! Прошло около месяца. Мне так и звонили, зато решил набрать я. В итоге выяснилось, что все вроде готов, только вот до меня не дозвонились. Было это уже где-то 9 февраля. А звонил ли кто-то вообще? Ну да ладно! Сказали приехать и подписать договор с приложенными к ним техническими условиями. Один экземпляр остается в городских электросетях, второй мне. С этого времени начинается уже не только бумажная работа, но и необходимость в том, чтобы начать что-то делать самому, своими руками. В технических условиях прописано, какой провод надо применять, какой счетчик, высоту установки и т.д. Все надо делать в соответствии с вашими техническими условиями! То есть надо все купить и установить. Из примечаний хотелось бы посоветовать все отводы и штанги выполнять с крючками, отверстиями, все это может пригодиться для подключения карабинов-держателей, натяжителей удерживающих провода.

(как выяснилось надо было еще прикрепить потом крючок или кольцо на верх, дабы закрепиться натяжителем)

(примерно все будет вот так на столбе)

(щит и счетчик были установлены внутри, дабы вандалы не разбили ничего. Автоматы должны стоять в отдельной коробке, чтобы их можно было опломбировать. Заглушки пломбы оказались неприемлемы для этого, как сказал контроллер, хотя в магазинах советуют именно их!)
Здесь же в договоре должна быть указана сумма за подключение. В моем случае это 550 рублей. Эту сумму необходимо оплатить в банке, по реквизитам указанным в договоре. Идем в банк и платим. Коммерческие банки берут очень хорошую комиссию за подобный перевод, поэтому лучше или Сбербанк РФ или через онлайнкабинет. В этом случае комиссия была 11 рублей. Далее снова едем в Горэлектросети и пишем заявление на осмотр всего того, что вы сделали.

В моем случае обещали связаться через 10 дней, все по тому же оставленному телефону. Ждем звонка. Перезвонили на третий день. Сказали, что есть возможность приехать, правда приехать это означает, что вы за ними заедете, заберете и привезете на место подключения. В итоге так и получилось. Заехал, забрал, привез. На месте специалист технического подключения осмотрел, что штанга для проводов, так я ее назову, находится на высоте не ниже 4,5 метров, что установлен короб и счетчик в нем. При этом сообщил о том, что все подключения, кроме как на столб, должен выполнить своими силами. Это собственно не такая большая проблема. Счетчик был однофазный и был подключен в соответствии с материалом статьи «Как подключить счетчик электроэнергии 220 вольт». Также был составлен и подписан акт обследования, который стал основным документом для дальнейших действий. С этим актом мне надо было ехать в другой отдел Горэлектросетей, который занимается непосредственным подключением.


По приезду туда был показан договор и акт, и мастер назначил мне сразу предварительную дату подключения. 27 февраля я приехал, а на 2 марта уже был назначен повторный осмотр и подключение. При этом за специалистом я вновь должен был приехать сам.
2 марта подходя к гаражу, то самое здание, которое я подключал, за 15 минут до 10, я увидел машину с вышкой. Это приехали непосредственные исполнители! Но в 10 я должен был только забрать контроллера из электросетей. Я сказал ребятам, что только выезжаю, а потом поехал за контроллером. По приезду еще и выяснилось, что контроллер не приходил и просто отсутствует. В итоге он пришел в минут 5 одиннадцатого, переоделся и мы выдвинулись. По приезду еще раз проверили все подключения и дали отмашку электрикам к присоединению на столб. Все подключили минут за 20, не более. После исполнители уехали, а контроллер достал чемоданчик и начал смотреть по прибору нагрузку. Видимо проверять счетчик. После я отвез его обратно и получил взамен акт…

Вот собственно и все. С этого дня я мог пользоваться электричеством в полном объеме и без проблем. Я должен был еще по звонку приехать и подписать договор на поставку электроэнергии, но к подключению это имеет отношение постольку поскольку.
Подводя итоги о подключении электричества к зданию, дому
Надо сказать, что при подключении дома, здания не много что требовалось знать. Везде меня направляли, особенно если спросишь и подумаешь. Все как я считаю, прошло без проблем. Но это лишь частный случай, которые не подразумевал установки дополнительных столбов, трансформаторов и т.д. Пролет провода был 25 метров и все.
Если говорить о времени, то сами видите. Все заняло менее 2 месяцев, с учетом праздников и выходных.
Финансовая сторона в основном включала расходы на электрооборудование (щиток, счетчик, кабель, автоматы, натяжители, проколы) около 4500 рублей и расходы на проезд. Проехал где-то по городу километров 120, подписывая договоры, и транспортируя контроллеров. Ну, а что относительно государственной пошлины, то если вы помните, она составила 550 рублей.